Joint venture con McCallum Bros per il trasporto marittimo verso le Isole Chatham: in arrivo una nuova nave operativa dal 2027
Nova Marine Carriers, gruppo armatoriale con base a Lugano, rafforza la propria presenza internazionale inaugurando una nuova linea di trasporto marittimo in Nuova Zelanda, attraverso una joint venture con la compagnia locale McCallum Bros. Il progetto – risultato di una gara pubblica promossa dal Ministero dei Trasporti neozelandese – prevede l’introduzione di una nave completamente nuova, progettata per operare come servizio shuttle tra la terraferma e le remote Isole Chatham, situate nell’Oceano Pacifico meridionale, a oltre 800 km dalla costa. L’unità entrerà in servizio nel 2027 e garantirà il trasporto regolare di materiali da costruzione, carburante, veicoli e bestiame. Un’operazione che segna una svolta strategica per Nova Marine, sia per la distanza geografica dal proprio hub principale, sia per il valore simbolico dell’espansione in un’area logistica complessa e lontana dai circuiti tradizionali.


Nave su misura per le Isole Chatham
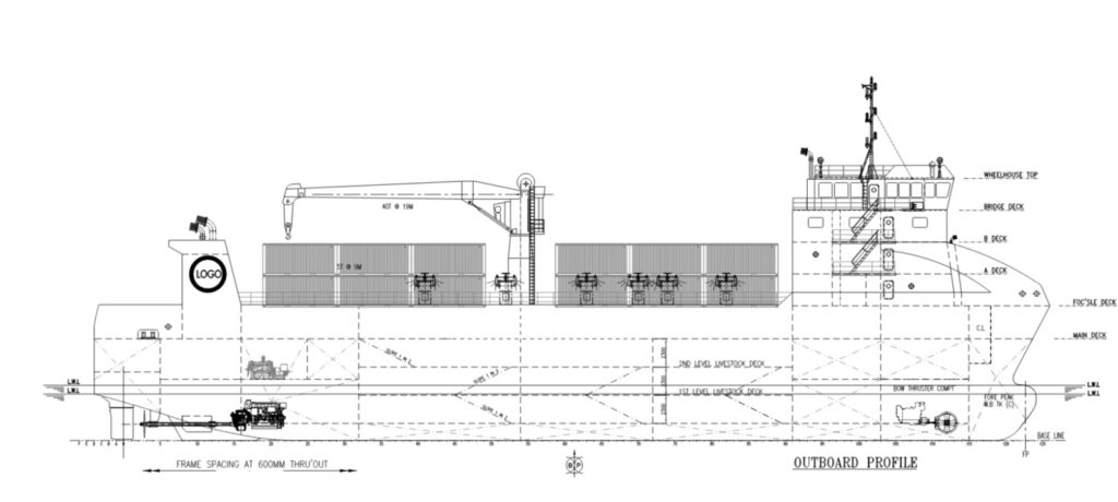
A vincere la commessa è stata la MBL JV, società nata dalla collaborazione paritetica tra Nova Marine Carriers e McCallum Bros – quest’ultima attiva da tre generazioni nel cabotaggio insulare nel Pacifico. Il progetto della nuova nave è stato sviluppato dagli uffici tecnici di Nova Marine in collaborazione con RINA, per rispondere a esigenze logistiche specifiche: si prevede il trasporto annuale di oltre 60.000 ovini e 10.000 bovini, con un modello operativo pensato per durare almeno vent’anni. La proposta è stata premiata per la sua sostenibilità economica e la capacità di assicurare continuità nei rifornimenti – elemento cruciale per le comunità insulari, finora servite da una nave con oltre 40 anni di attività. La nave sostituirà infatti la Southern Tiare, da tempo non più all’altezza degli standard richiesti in termini di affidabilità.
Strategia globale e adattabilità
Con questa operazione, Nova Marine Carriers dimostra la propria capacità di affrontare nuove sfide logistiche, confermandosi un operatore globale nel trasporto marittimo. “La joint venture con McCallum Bros rappresenta per noi una svolta – ha dichiarato il CEO Vincenzo Romeo – e testimonia la volontà del Gruppo di adattarsi a un mercato sempre più complesso, che impone elasticità e visione a lungo termine”. Già presente in Nuova Zelanda con una nave cementiera, l’azienda amplia ora la propria gamma di servizi nel Sud Pacifico, proponendosi come partner affidabile anche nei contesti più remoti. Una scelta che rafforza l’identità di Nova Marine come brand internazionale e dinamico nel trasporto marittimo, capace di operare anche nei luoghi più lontani – geograficamente, ma non strategicamente – dal suo quartier generale europeo.


